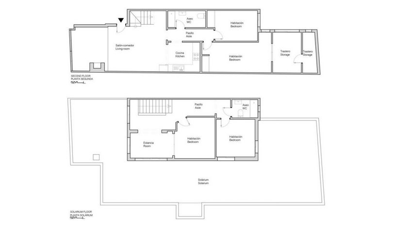
Oferujemy ten fantastyczny penthouse w centrum Torrevieja. Naprawdę jest tu miejsce dla całej rodziny. Dom składa się z czterech do pięciu sypialni, w zależności od tego, jak go urządzisz, dwóch łazienek, salonu z otwartą kuchnią, a także dodatkowego salonu na piętrze. Mniej więcej cały dom został niedawno odnowiony w jasnym i nowoczesnym stylu, dzięki czemu bardzo łatwo się w nim rozwijać. Na górnym poziomie znajduje się to, co czyni ten dom tak wyjątkowym, taras na dachu o powierzchni 109 metrów kwadratowych! Jest tu mnóstwo miejsca, aby cieszyć się słońcem, grillować i spędzać czas z przyjaciółmi i rodziną lub po prostu być.
Ponieważ dom znajduje się w centrum Torrevieja, znajduje się w odległości spaceru od prawie wszystkiego, czego można chcieć. Świetna oferta gastronomiczna, mnóstwo barów, sklepów, usług, takich jak apteki, banki, optycy i bliskość zarówno plaży Cura, jak i plaży Los Locos, gdzie można spędzać dni na słońcu i kąpielach. Torrevieja jest miastem tętniącym życiem przez cały rok i oferuje rozrywki dla wszystkich grup wiekowych i całej rodziny, takie jak kręgle, golf, karting, park wodny lub, dlaczego nie, zakupy w dużym centrum handlowym Habaneras.
To jest dla tych, którzy szukają dużego mieszkania w wyjątkowym typie z absolutnie wspaniałym tarasem na dachu.
Przestronny penthouse w Torrevieja
lokalizacja: Torrevieja
239 000,00 PLN
1 896,83 PLN
Dane szczegółowe
- Typ transakcji: sprzedaż
- Typ nieruchomości: Mieszkanie
- Lokalizacja: Torrevieja
- Powierzchnia:126 m2
- Liczba pokoi: 7
- Piętro: 3 z 3
- Numer oferty: HY920387
- Cena: 239 000,00 PLN
- Cena za m2: 1 896,83 PLN
Opis nieruchomości
Kontakt do opiekuna:
Home4You International Sp. z.o.o.