Ten apartament na najwyższym piętrze ma wszystko, czego możesz potrzebować. Został on całkowicie odnowiony przy użyciu wysokiej jakości materiałów i urządzony w bardzo dobrym guście. Znajduje się w budynku z windą, położonym obok bardzo ładnego placu i około 500 m od plaży i malowniczego starego miasta Villajoyosa. Tutaj znajdziesz wszystkie sklepy, restauracje i inne usługi tuż za rogiem, a jednocześnie będziesz cieszyć się spokojem mieszkania na bardzo prywatnym najwyższym piętrze.
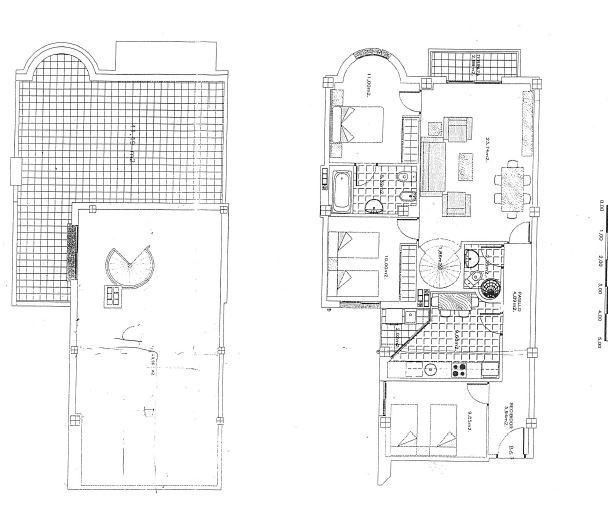
Mieszkanie jest gotowe do zamieszkania i jest rozmieszczone na dwóch poziomach. Na głównym piętrze znajdują się 3 sypialnie, wszystkie z wbudowanymi szafami, 2 łazienki (jedna z nich z łazienką), duża kuchnia i duży salon z wyjściem na balkon o powierzchni około 3 mkw. Z salonu przez spiralne schody dostajemy się na piętro. Ta część nieruchomości, która liczy się z własną jadalnią, częścią wypoczynkową, garderobą, łazienką z prysznicem i dużą przestrzenią sypialnianą, która jest stworzona w otwartej koncepcji, jest naprawdę jak kompletny apartament dla gości lub po prostu prywatne odosobnienie.
Ten poziom oferuje prywatny taras na dachu o powierzchni około 40 mkw. z letnią kuchnią i dużą ilością dodatkowej przestrzeni na świeżym powietrzu na dowolne potrzeby, relaks lub rozrywkę. Jest idealny zarówno do użytku prywatnego, jak i do organizowania spotkań, ciesząc się śródziemnomorskim klimatem na tle morza.
Nieruchomość jest wyposażona w klimatyzację, a meble można kupić osobno. Cena obejmuje również zamknięty garaż z dużą powierzchnią magazynową znajdującą się w piwnicy.
Penthouse z widokiem na morze
lokalizacja: Villajoyosa
435 000,00 EUR
2 153,47 EUR
Dane szczegółowe
- Typ transakcji: sprzedaż
- Typ nieruchomości: Mieszkanie
- Lokalizacja: Villajoyosa
- Powierzchnia:202 m2
- Liczba pokoi: 6
- Piętro: 4 z 4
- Numer oferty: HY965654
- Cena: 435 000,00 EUR
- Cena za m2: 2 153,47 EUR
Opis nieruchomości
Kontakt do opiekuna:
Home4You International Sp. z.o.o.