Prezentujemy nowoczesną willę położoną w ekskluzywnej dzielnicy Vista Cana, na dynamicznie rozwijającym się osiedlu w rejonie Punta Cana. Dom został zaprojektowany z myślą o wygodzie i stylu tropikalnego życia — idealny zarówno jako rezydencja, jak i inwestycja w nieruchomość na Karaibach.
Układ i powierzchnie
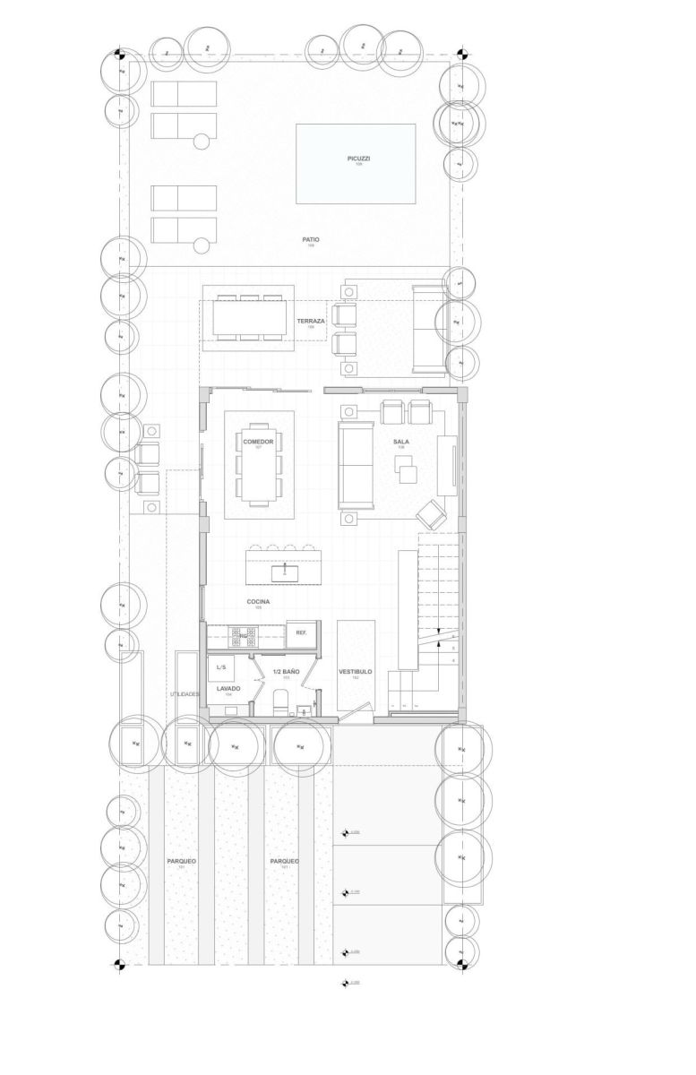
Na parterze znajduje się przestronny salon z jadalnią, kuchnia, toaleta, pomieszczenie gospodarcze, taras oraz prywatny ogród z picuzzi. Na piętrze rozmieszczono trzy sypialnie, w tym główną z łazienką i garderobą oraz dwie dodatkowe łazienki i balkony z widokiem na ogród.
Udogodnienia i otoczenie
Inwestycja jest częścią nowoczesnego kompleksu z rozbudowaną infrastrukturą rekreacyjną:
- 9-dołkowe pole golfowe z oświetleniem nocnym,
- laguny z wodą słodką i słoną idealne do kąpieli i sportów wodnych,
- ścieżki biegowe i rowerowe,
- strefy coworkingowe, restauracje i kawiarnie,
- akademia golfowa, szkoła międzynarodowa oraz przestrzenie sportowe.
Bezpieczna, zamknięta społeczność z całodobową ochroną zapewnia komfortowe i spokojne życie w tropikalnym klimacie.
Skontaktuj się z nami, by poznać szczegóły tej nieruchomości !
Elegancka willa 4-pokojowa na Karaibach
lokalizacja: Punta Cany, Calle Kiev
260 000,00 USD
1 101,69 USD
Dane szczegółowe
- Typ transakcji: sprzedaż
- Typ nieruchomości: Dom
- Lokalizacja: Punta Cany, Calle Kiev
- Powierzchnia:236 m2
- Liczba pokoi: 4
- Rok budowy: 2026
- Liczba pięter: 2
-
Powierzchnia działki:
600 m2
- Numer oferty: HY361847
- Cena: 260 000,00 USD
- Cena za m2: 1 101,69 USD
Opis nieruchomości
Adres strony www: https:// NULL
Kontakt do opiekuna:
Home4You International Sp. z.o.o.